
| 产品标准: |
| GB6063-85 YA圆振动筛 |
| 用途及特点 |
| YA型圆振动筛运动轨迹为圆,全系列共有四十种规格,可供选煤、选矿、建材、电力及化工等部门作物料分级用。筛机结构先进,坚固而用,振动噪声低,维修方便。 |
| 选用须知 |
| 1、筛机分单层和双层,并有轻型和重型之分。 |
| 2、筛网结构有纺织网、冲孔筛板。如果选用铁篦式筛板可按要求设计。 |
| 3、双层筛上层筛面选定的筛孔尺寸超过技术性能及参数中规定的筛孔尺寸时,应按要求设计。 |
| 4、电动机可安装在左侧或右侧,无特殊要求按安装图安装、供货。 |
| 5、给料箱为选择件,用户如有要求,可供给料箱。 |
| 6、在选用时如有改变筛面倾角的要求,可另行设计。 |
| 7、基础螺栓由用户自备。 |
| 产品型号表示示例 |
| 2YAH18-36 |
| 2-双层(单层不注) |
| Y-圆运动 |
| A-轴偏心 |
| H-重型筛(轻型不注) |
| 18-筛面宽度(分米) |
| 36-筛面长度(分米) |
| 技术性能及参数 |
|
型号 |
筛面 |
给料料度(mm) |
处理量 (t/h) |
振次 (r.p.m) |
双振幅(mm) |
电动机 |
外形尺寸 长×宽×高 |
总重 (kg) |
每支点工作动负荷 |
最大动负荷 | ||||||||
|
现用 |
原用 |
层数 |
面积(m2) |
倾角(度) |
筛孔尺寸(mm) |
结构 |
型号 |
功率(KW) |
给料端 |
排料端 |
给料端 |
排料端 | ||||||
| YA1236 | Ti412 | 1 | 4.3 | 20 | 6-50 | 编织 | ≤200 | 80-240 | 845 | 9.5 | Y160M-4 | 11 | 3757×2364×2456 | 4905 | ±802 | ±802 | ±4008 | ±4008 |
| 2YA1236 | 2Ti412 | 2 | 4.3 | 20 | 6-50 | 上编织 下编织 |
≤200 | 80-240 | 845 | 9.5 | Y160M-4 | 11 | 3757×2364×2456 | 5311 | ±802 | ±802 | ±4008 | ±4008 |
| YA1530 | Ti510 | 1 | 4.5 | 20 | 6-50 | 编织 | ≤200 | 80-240 | 845 | 9.5 | Y160M-4 | 11 | 3184×2670×2280 | 4672 | ±±843 | ±843 | ±4214 | ±4214 |
| YA1536 | Ti512 | 1 | 5.4 | 20 | 6-50 | 编织 | ≤200 | 100-350 | 845 | 9.5 | Y160M-4 | 11 | 3757×2670×2419 | 5137 | ±843 | ±843 | ±4165 | ±4165 |
| 2YA1536 | 2Ti512 | 2 | 5.4 | 20 | 6-50 | 上编织 下编织 |
≤400 | 100-350 | 845 | 9.5 | Y160L-4 | 15 | 3757×3715×2437 | 5642 | ±802 | ±802 | ±4008 | ±4008 |
| YAH1536 | TiS512 | 1 | 5.4 | 20 | 30-150 | 冲孔 | ≤400 | 160-650 | 755 | 9.5 | Y160M-4 | 11 | 3757×2670×2437 | 5621 | ±931 | ±931 | ±4655 | ±4655 |
| 2YAH1536 | 2TiS512 | 2 | 5.4 | 20 | 30-200 6-50 |
上冲孔 下编织 |
≤400 | 160-650 | 755 | 11 | Y160L-4 | 15 | 3757×2715×2437 | 6045 | ±931 | ±931 | ±4655 | ±4655 |
| YA1542 | Ti514 | 1 | 6.5 | 20 | 6-50 | 编织 | ≤200 | 110-385 | 845 | 9.5 | Y160M-4 | 11 | 4331×2670×2655 | 5515 | ±802 | ±802 | ±4008 | ±4008 |
| 2YA1542 | 2Ti514 | 2 | 6.5 | 20 | 30-150 | 上编织 下编织 |
≤200 | 110-385 | 845 | 9.5 | Y160L-4 | 15 | 4331×2715×2675 | 6098 | ±802 | ±802 | ±4008 | ±4008 |
| YA1548 | Ti516 | 1 | 7.2 | 20 | 6-50 | 编织 | ≤200 | 120-420 | 845 | 9.5 | Y160L-4 | 15 | 4904×2715×2854 | 5918 | ±847 | ±847 | ±4234 | ±4234 |
| 2YA1548 | 2Ti516 | 2 | 7.2 | 20 | 6-50 | 上编织 下编织 |
≤200 | 120-420 | 845 | 9.5 | Y160L-4 | 15 | 4904×2715×2861 | 6321 | ±847 | ±847 | ±4234 | ±4234 |
| YAH1548 | TiS516 | 1 | 7.2 | 20 | 30-150 | 冲孔 | ≤400 | 200-7810 | 755 | 11 | Y160L-4 | 15 | 4904×2715×2943 | 6842 | ±1392 | ±1392 | ±6958 | ±6958 |
| 2YAH1548 | 2TiS516 | 2 | 7.2 | 20 | 30-150 | 上冲孔 下编织 |
≤400 | 200-780 | 755 | 11 | Y160L-4 | 15 | 4904×2715×2943 | 7404 | ±1392 | ±1392 | ±6958 | ±6958 |
| YA1836 | Ti612 | 1 | 6.5 | 20 | 30-150 | 编织 | ≤200 | 140-220 | 845 | 9.5 | Y160M-4 | 11 | 3757×2975×2419 | 5205 | ±892 | ±892 | ±4460 | ±4460 |
| 2YA1836 | 1Ti612 | 2 | 6.5 | 20 | 30-150 | 上编织 下编织 |
≤200 | 140-220 | 845 | 9.5 | Y160L-4 | 15 | 3757×2975×2419 | 5946 | ±847 | ±847 | ±4234 | ±4234 |
| YAH1836 | TiS612 | 1 | 6.5 | 20 | 30-150 | 冲孔 | ≤400 | 220-910 | 755 | 11 | , , Y160M-4 | 11 | 3757×2975×2437 | 5900 | ±980 | ±980 | ±4900 | ±4900 |
| 2YAH1836 | 2TiS612 | 2 | 6.5 | 20 | 30-150 6-50 |
上冲孔 下编织 |
≤400 | 220-900 | 755 | 11 | Y160L-4 | 15 | 3757×3020×2437 | 6353 | ±980 | ±980 | ±4900 | ±4900 |
| YA1842 | Ti614 | 1 | 7.6 | 20 | 6-150 | 编织 | ≤200 | 140-490 | 845 | 9.5 | Y160L-4 | 15 | 4331×3020×3675 | 5829 | ±847 | ±847 | ±4234 | ±4234 |
| 2YA1842 | 2Ti614 | 2 | 7.6 | 20 | 6-150 | 上编织 下编织 |
≤200 | 140-490 | 845 | 9.5 | Y160L-4 | 15 | 4331×3020×3675 | 6437 | ±847 | ±847 | ±4234 | ±4234 |
| YAH1842 | TiS614 | 1 | 7.6 | 20 | 30-150 | 冲孔 | ≤400 | 450-800 | 755 | 11 | Y160L-4 | 15 | 4331×3020×2700 | 6352 | ±928 | ±928 | ±4640 | ±4640 |
| 2YAH1842 | 2TiS614 | 2 | 7.6 | 20 | 30-150 | 上冲孔 下编织 |
≤400 | 450-800 | 755 | 11 | Y160L-4 | 15 | 4331×3020×2700 | 7037 | ±928 | ±928 | ±4640 | ±4640 |
| YA1848 | Ti616 | 1 | 8.6 | 20 | 6-50 | 编织 | ≤200 | 150-525 | 845 | 9.5 | Y160L-4 | 15 | 4904×3020×2861 | 6289 | ±847 | ±847 | ±4234 | ±4234 |
| 2YA1848 | 2Ti616 | 2 | 8.6 | 20 | 6-50 | 上编织 下编织 |
≤200 | 150-525 | 845 | 9.5 | Y160L-4 | 15 | 4904×3023×2861 | 6624 | ±847 | ±847 | ±4234 | ±4234 |
| YAH1848 | TiS616 | 1 | 8.6 | 20 | 30-150 | 冲孔 | 0-150 | 250-1000 | 755 | 11 | Y160L-4 | 15 | 4904×3026×2943 | 7122 | ±1392 | ±1392 | ±6958 | ±6958 |
| 2YAH1848 | 2TiS616 | 2 | 8.6 | 20 | 30-150 | 上冲孔 下编织 |
≤400 | 250-1000 | 755 | 11 | Y160L-4 | 15 | 4904×3026×2943 | 7740 | ±1392 | ±1392 | ±6958 | ±6958 |
| YA2148 | Ti716 | 1 | 10 | 20 | 6-50 | 编织 | ≤210 | 180-630 | 748 | 9.5 | Y180M-4 | 18.5 | 4945×3423×3515 | 9033 | ±1675 | ±1675 | ±8379 | ±8379 |
| 2YA2148 | 2Ti716 | 2 | 10 | 20 | 6-50 | 上编织 下编织 |
≤210 | 180-630 | 748 | 9.5 | Y180L-4 | 22 | 4945×3463×3515 | 10532 | ±1675 | ±1675 | ±8379 | ±8379 |
| YAH2148 | TiS716 | 1 | 10 | 20 | 13-200 | 冲孔 | ≤400 | 270-1200 | 708 | 11 | Y180M-4 | 18.5 | 4945×3423×3501 | 10430 | ±2889 | ±2889 | ±14445 | ±14445 |
| 2YAH2148 | 2TiS716 | 2 | 10 | 20 | 30-150 | 上冲孔 下编织 |
≤400 | 270-1200 | 708 | 11 | Y180L-4 | 22 | 3092×3423×3674 | 11190 | ±2889 | ±2889 | ±14445 | ±14445 |
| YA2160 | Ti720 | 1 | 12.6 | 20 | 3-80 | 编织 | ≤200 | 230-800 | 748 | 9.5 | Y180M-4 | 18.5 | 6092×3463×3674 | 9925 | ±2495 | ±2495 | ±12475 | ±12475 |
| 2YA2160 | 2Ti720 | 2 | 12.6 | 20 | 6-50 | 上编织 下编织 |
≤200 | 230-800 | 748 | 9.5 | Y180L-4 | 22 | 6116×3619×3849 | 11249 | ±2495 | ±2495 | ±12475 | ±12475 |
| YAH2160 | TiS720 | 1 | 12.6 | 20 | 30-150 | 冲孔 | ≤400 | 350-1500 | 708 | 11 | Y200L-4 | 30 | 6116×3619×3849 | 12490 | ±2889 | ±2889 | ±14445 | ±14445 |
| 2YAH2160 | 2TiS720 | 2 | 12.6 | 20 | 30-150 | 上冲孔 下编织 |
≤400 | 350-450 | 708 | 11 | Y200L-4 | 30 | 6116×3619×3849 | 13858 | ±2889 | ±2889 | ±14445 | ±14445 |
| YA2448 | Ti816 | 1 | 11.5 | 20 | 6-50 | 编织 | ≤200 | 200-700 | 748 | 9.5 | Y180M-4 | 18.5 | 4945×3729×3473 | 9843 | ±2495 | ±2495 | ±12475 | ±12475 |
| YAH2448 | TiS816 | 1 | 11.5 | 20 | 6-50 | 冲孔 | ≤400 | 310-1300 | 708 | 11 | Y200L-4 | 30 | 4970×3925×3638 | 11830 | ±2889 | ±2889 | ±14445 | ±14445 |
| 2YAH2448 | 2TiS816 | 2 | 11.5 | 20 | 30-150 | 上冲孔 下编织 |
≤400 | 310-1300 | 708 | 11 | Y200L-4 | 30 | 4970×3925×3638 | 13012 | ±2889 | ±2889 | ±14445 | ±14445 |
| YA2460 | Ti820 | 1 | 14.4 | 20 | 6-50 | 编织 | ≤200 | 260-780 | 748 | 9.5 | Y200L-4 | 30 | 6091×3925×3850 | 12240 | ±2495 | ±2495 | ±12475 | ±12475 |
| 2YA2460 | 2Ti820 | 2 | 14.4 | 20 | 6-50 | 上编织 下编织 |
≤200 | 260-780 | 748 | 9.5 | Y200L-4 | 30 | 6091×3925×3850 | 13583 | ±2495 | ±2495 | ±12475 | ±12475 |
| YAH2460 | TiS820 | 1 | 14.4 | 20 | 30-150 | 冲孔 | ≤400 | 400-1700 | 708 | 11 | Y200L-4 | 30 | 6091×3925×2846 | 13096 | ±2889 | ±2889 | ±14445 | ±14445 |
| 2YAH2460 | 2TiS820 | 2 | 14.4 | 20 | 30-150 | 上冲孔 下编织 |
≤400 | 400-1700 | 708 | 11 | Y200L-4 | 30 | 6091×3925×3846 | 14455 | ±2889 | ±2889 | ±14445 | ±14445 |
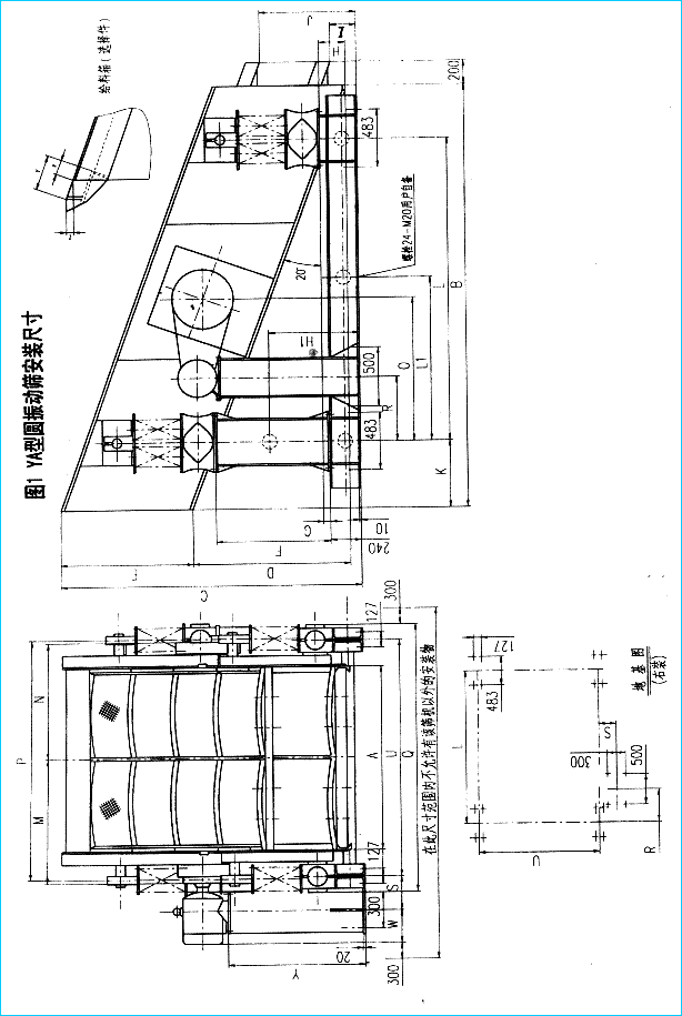
![]() |
| 筛机型号 | 振动器型号 | A | B | C | D | E | F | G | H | I | J | K | L | M |
| 2YA1236 | YA110 | 1225 | 3557 | 2419 | 1298 | 1045 | 930 | 0 | 164 | 140 | 794 | 560 | 2548 | 903 |
| 2YA1536 | YA110 | 1530 | 3557 | 2419 | 1298 | 1045 | 930 | 0 | 164 | 130 | 792 | 560 | 2548 | 1055 |
| 2YAH1536 | YA110 | 1530 | 3557 | 2437 | 1290 | 1064 | 930 | 0 | 157 | 126 | 560 | 560 | 2564 | 1055 |
| 2YA1542 | YA110 | 1530 | 4131 | 2675 | 1501 | 1077 | 1140 | 0 | 143 | 181 | 845 | 562 | 3138 | 1055 |
| 2YA1548 | YA110 | 1530 | 4704 | 2861 | 1707 | 1077 | 1340 | 0 | 159 | 164 | 828 | 560 | 3694 | 1055 |
| 2YAH1548 | YA110 | 1530 | 4704 | 2943 | 1707 | 1145 | 1340 | 0 | 149 | 171 | 911 | 560 | 3694 | 1055 |
| 2YA1836 | YA110 | 1835 | 3557 | 2419 | 1298 | 1045 | 930 | 0 | 164 | 130 | 792 | 560 | 2548 | 1208 |
| 2YAH1836 | YA110 | 1835 | 3557 | 2437 | 1292 | 1064 | 930 | 0 | 150 | 125 | 826 | 559 | 2560 | 1208 |
| 2YA1842 | YA110 | 1835 | 4131 | 2675 | 1501 | 1077 | 1140 | 0 | 143 | 181 | 845 | 563 | 3138 | 1208 |
| 2YAH1842 | YA110 | 1835 | 4131 | 2700 | 1501 | 1145 | 1140 | 0 | 186 | 138 | 845 | 563 | 3138 | 1208 |
| 2YA1848 | YA110 | 1835 | 4704 | 2861 | 1706 | 1077 | 1340 | 0 | 159 | 164 | 828 | 560 | 3694 | 1208 |
| 2YAH1848 | YA110 | 1835 | 4704 | 2943 | 1707 | 1145 | 1340 | 0 | 171 | 120 | 911 | 560 | 3694 | 1208 |
| 2YA2148 | YA140 | 2140 | 4745 | 3515 | 1740 | 1547 | 1500 | 0 | 261 | 407 | 1363 | 668 | 3410 | 1434 |
| 2YAH2148 | YA140 | 2140 | 4745 | 3501 | 1738 | 1520 | 1500 | 250 | 247 | 422 | 1368 | 660 | 3410 | 1434 |
| 2YA2160 | YA140 | 2140 | 5892 | 3674 | 2144 | 1499 | 1500 | 250 | 459 | 205 | 1088 | 1279 | 3436 | 1434 |
| 2YAH2160 | YA170 | 2140 | 5916 | 3849 | 2153 | 1628 | 1670 | 250 | 422 | 255 | 1278 | 825 | 3890 | 1526 |
| 2YA2448 | YA170 | 2445 | 4770 | 3638 | 1735 | 1628 | 1500 | 250 | 215 | 463 | 1485 | 718 | 3436 | 1678 |
| 2YAH2460 | YA170 | 2445 | 5891 | 3850 | 2150 | 1628 | 1670 | 250 | 418 | 251 | 1283 | 824 | 3890 | 1678 |
| 2YA2460 | YA170 | 2445 | 5891 | 3846 | 2146 | 1628 | 1670 | 250 | 418 | 255 | 1290 | 818 | 3898 | 1678 |
| YA1236 | YA110 | 1225 | 3557 | 2456 | 1298 | 1077 | 930 | 0 | 164 | 832 | 560 | 2548 | 903 | |
| YA1530 | YA110 | 1530 | 2984 | 2280 | 1093 | 1135 | 700 | 0 | 183 | 844 | 573 | 1910 | 1055 | |
| YA1536 | YA110 | 1530 | 3557 | 2419 | 1298 | 1045 | 930 | 0 | 164 | 792 | 560 | 2548 | 1055 | |
| YAH1536 | YA110 | 1530 | 3557 | 2437 | 1290 | 1064 | 930 | 0 | 157 | 530 | 560 | 2564 | 1055 | |
| YA1542 | YA110 | 1530 | 4131 | 2655 | 1502 | 1071 | 1140 | 0 | 157 | 790 | 562 | 3138 | 1055 | |
| YA1548 | YA110 | 1530 | 4704 | 2854 | 1706 | 1077 | 1340 | 0 | 163 | 828 | 560 | 3694 | 1055 | |
| YAH1548 | YA110 | 1530 | 4704 | 2943 | 1707 | 1145 | 1340 | 0 | 149 | 911 | 560 | 3694 | 1055 | |
| YA1836 | YA110 | 1835 | 3557 | 2419 | 1298 | 1045 | 930 | 0 | 164 | 792 | 560 | 2548 | 1208 | |
| YAH1836 | YA110 | 1835 | 3557 | 2437 | 1298 | 1064 | 930 | 0 | 159 | 836 | 559 | 2560 | 1208 | |
| YA1842 | YA110 | 1835 | 4131 | 2675 | 1501 | 1077 | 1140 | 0 | 157 | 845 | 562 | 3138 | 1208 | |
| YAH1842 | YA110 | 1835 | 4131 | 2700 | 1501 | 1145 | 1140 | 0 | 186 | 845 | 563 | 3138 | 1208 | |
| YA1848 | YA110 | 1835 | 4707 | 2861 | 1707 | 1077 | 1340 | 0 | 159 | 826 | 560 | 3694 | 1208 | |
| YAH1848 | YA110 | 1835 | 4707 | 2943 | 1707 | 1145 | 1340 | 0 | 149 | 911 | 560 | 3694 | 1208 | |
| YA2148 | YA140 | 2140 | 4745 | 3515 | 1740 | 1547 | 1500 | 0 | 261 | 1363 | 668 | 3410 | 1434 | |
| YAH2148 | YA140 | 2140 | 4745 | 3501 | 1738 | 1520 | 1500 | 250 | 247 | 1368 | 660 | 3410 | 1434 | |
| YA2160 | YA140 | 2140 | 5892 | 3674 | 2144 | 1499 | 1500 | 250 | 459 | 1094 | 1279 | 3436 | 1434 | |
| YAH2160 | YA170 | 2140 | 5916 | 3849 | 2157 | 1628 | 1760 | 250 | 427 | 1278 | 825 | 3890 | 1526 | |
| YA2448 | YA140 | 2445 | 4745 | 3473 | 1738 | 1512 | 1500 | 250 | 267 | 1311 | 660 | 3410 | 1586 | |
| YAH2448 | YA170 | 2445 | 4770 | 3638 | 1735 | 1628 | 1500 | 250 | 215 | 1485 | 718 | 3436 | 1678 | |
| YA2460 | YA170 | 2445 | 5891 | 3850 | 2150 | 1628 | 1670 | 250 | 418 | 1283 | 824 | 3890 | 1678 | |
| YAH2460 | YA170 | 2445 | 5891 | 3846 | 2146 | 1628 | 1670 | 250 | 418 | 1290 | 818 | 3898 | 1678 |
| 筛机型号 | 振动器型号 | N | O | P | Q | R | S | T | U | V | W | X | Y | Z | H1 | L1 |
| 2YA1236 | YA110 | 820 | 1211 | 1700 | 1933 | 542 | 283 | 1465 | 1676 | 1100 | 277 | 168 | 432 | 90 | 740 | 1381 |
| 2YA1536 | YA110 | 972 | 1211 | 2005 | 2238 | 542 | 305 | 1770 | 1981 | 1100 | 300 | 168 | 432 | 90 | 740 | 1381 |
| 2YAH1536 | YA110 | 972 | 1203 | 2005 | 2238 | 542 | 303 | 1770 | 1981 | 1100 | 300 | 174 | 432 | 88 | 740 | 1381 |
| 2YA1542 | YA110 | 972 | 1501 | 2005 | 2238 | 682 | 305 | 1770 | 1981 | 1100 | 300 | 177 | 432 | 87 | 950 | 1671 |
| 2YA1548 | YA110 | 972 | 1786 | 2005 | 2238 | 976 | 305 | 1770 | 1981 | 1100 | 300 | 168 | 432 | 90 | 1150 | 1956 |
| 2YAH1548 | YA110 | 972 | 1786 | 2005 | 2238 | 976 | 305 | 1770 | 1981 | 1100 | 300 | 180 | 432 | 86 | 1150 | 1956 |
| 2YA1836 | YA110 | 1125 | 1211 | 2310 | 2543 | 542 | 305 | 2075 | 2286 | 1100 | 300 | 168 | 432 | 90 | 740 | 1373 |
| 2YAH1836 | YA110 | 1126 | 1203 | 2310 | 2543 | 542 | 305 | 2075 | 2286 | 1100 | 300 | 173 | 406 | 76 | 740 | 1373 |
| 2YA1842 | YA110 | 1125 | 1501 | 2310 | 2543 | 682 | 305 | 2075 | 2286 | 1100 | 300 | 177 | 432 | 87 | 950 | 1671 |
| 2YAH1842 | YA110 | 1125 | 1480 | 2310 | 2543 | 660 | 305 | 2075 | 2286 | 1100 | 300 | 185 | 432 | 84 | 950 | 1671 |
| 2YA1848 | YA110 | 1125 | 1786 | 2310 | 2543 | 976 | 305 | 2075 | 2286 | 1100 | 300 | 168 | 432 | 90 | 1150 | 1956 |
| 2YAH1848 | YA110 | 1125 | 1786 | 2310 | 2543 | 976 | 305 | 2075 | 2286 | 1100 | 300 | 180 | 432 | 86 | 1150 | 1956 |
| 2YA2148 | YA140 | 1360 | 1634 | 2615 | 2848 | 660 | 404 | 2380 | 2591 | 1400 | 339 | 227 | 570 | 117 | 1310 | 1419 |
| 2YAH2148 | YA140 | 1360 | 1686 | 2615 | 2848 | 708 | 404 | 2380 | 2591 | 1400 | 339 | 231 | 634 | 138 | 1310 | 1419 |
| 2YA2160 | YA140 | 1360 | 1634 | 2651 | 2848 | 660 | 404 | 2380 | 2591 | 1400 | 339 | 248 | 636 | 133 | 1310 | 1416 |
| 2YAH2160 | YA170 | 1446 | 2067 | 2651 | 2848 | 1078 | 520 | 2380 | 2591 | 1600 | 380 | 246 | 642 | 135 | 1310 | 1416 |
| 2YA2448 | YA170 | 1598 | 1606 | 2920 | 3153 | 612 | 520 | 2685 | 2896 | 1600 | 380 | 258 | 635 | 129 | 1310 | 1431 |
| 2YAH2460 | YA170 | 1598 | 2067 | 2920 | 3153 | 1078 | 520 | 2685 | 2896 | 1600 | 380 | 254 | 698 | 152 | 1480 | 1849 |
| 2YA2460 | YA170 | 1598 | 2077 | 2920 | 3153 | 1078 | 520 | 2685 | 2896 | 1600 | 380 | 242 | 698 | 156 | 1480 | 1849 |
| YA1236 | YA110 | 820 | 1211 | 1700 | 1933 | 542 | 283 | 1465 | 1676 | 1100 | 277 | 168 | 432 | 90 | 740 | 1381 |
| YA1530 | YA110 | 972 | 912 | 2005 | 2238 | 474 | 283 | 1770 | 1981 | 930 | 277 | 196 | 456 | 88 | ||
| YA1536 | YA110 | 972 | 1211 | 2005 | 2338 | 542 | 283 | 1770 | 1981 | 1100 | 277 | 168 | 432 | 90 | 740 | 1381 |
| YAH1536 | YA110 | 972 | 1203 | 2005 | 2238 | 542 | 283 | 1770 | 1981 | 1100 | 277 | 174 | 432 | 740 | 1381 | |
| YA1542 | YA110 | 972 | 1501 | 2005 | 2238 | 682 | 283 | 1770 | 1981 | 1100 | 277 | 177 | 432 | 87 | 950 | 1671 |
| YA1548 | YA110 | 972 | 1786 | 2005 | 2238 | 976 | 305 | 1770 | 1981 | 1100 | 300 | 168 | 432 | 90 | 1150 | 1956 |
| YAH1548 | YA110 | 972 | 1786 | 2005 | 2238 | 976 | 305 | 1770 | 1981 | 1100 | 300 | 180 | 432 | 86 | 1150 | 1956 |
| YA1836 | YA110 | 1125 | 1211 | 2310 | 2543 | 542 | 283 | 2075 | 2286 | 1100 | 277 | 168 | 432 | 90 | 740 | 1373 |
| YAH1836 | YA110 | 1125 | 1203 | 2310 | 2543 | 542 | 283 | 2075 | 2286 | 1100 | 277 | 173 | 406 | 76 | 740 | 1373 |
| YA1842 | YA110 | 1125 | 1501 | 2310 | 2543 | 682 | 305 | 2075 | 2286 | 1100 | 300 | 177 | 432 | 87 | 950 | 1671 |
| YAH1842 | YA110 | 1125 | 1480 | 2310 | 2543 | 660 | 305 | 2075 | 2286 | 1100 | 300 | 185 | 432 | 84 | 950 | 1671 |
| YA1848 | YA110 | 1125 | 1786 | 2310 | 2543 | 976 | 305 | 2075 | 2286 | 1100 | 300 | 168 | 432 | 90 | 1150 | 1956 |
| YAH1848 | YA110 | 1125 | 1786 | 2310 | 2543 | 976 | 305 | 2075 | 2286 | 1100 | 300 | 180 | 432 | 86 | 1150 | 1956 |
| YA2148 | YA140 | 1360 | 1634 | 2615 | 2848 | 660 | 385 | 2386 | 2591 | 1400 | 318 | 227 | 570 | 117 | 1310 | 1419 |
| YAH2148 | YA140 | 1460 | 1686 | 2615 | 2848 | 708 | 385 | 2386 | 2591 | 1400 | 319 | 231 | 634 | 138 | 1310 | 1419 |
| YA2160 | YA140 | 1360 | 1634 | 2615 | 2848 | 660 | 385 | 2386 | 2591 | 1400 | 319 | 248 | 636 | 133 | 1310 | 1416 |
| YAH2160 | YA170 | 1446 | 2067 | 2615 | 2848 | 1078 | 520 | 2380 | 2591 | 1600 | 319 | 246 | 642 | 135 | 1310 | 1416 |
| YA2448 | YA140 | 1512 | 1649 | 2920 | 3153 | 660 | 385 | 2685 | 2896 | 1400 | 319 | 237 | 644 | 139 | 1310 | 1431 |
| YAH2448 | YA170 | 1598 | 1606 | 2920 | 3153 | 612 | 520 | 2685 | 2896 | 1600 | 380 | 258 | 635 | 129 | 1310 | 1431 |
| YA2460 | YA170 | 1598 | 2067 | 2920 | 3153 | 1078 | 520 | 2685 | 2896 | 1600 | 380 | 254 | 698 | 152 | 1480 | 1819 |
| YAH2460 | YA170 | 1598 | 2077 | 2920 | 3153 | 1078 | 520 | 2685 | 2896 | 1600 | 380 | 242 | 698 | 136 | 1480 | 1819 |